1806 Bay Boulevard
Point Pleasant
1806 Bay Boulevard
Point Pleasant
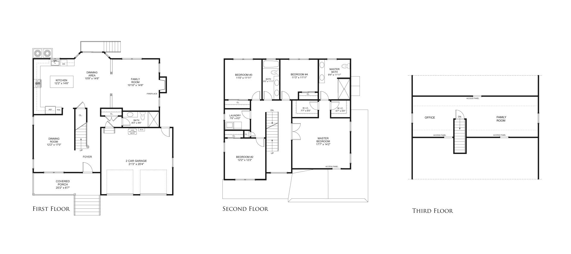
Approximate 2850 square feet custom home with 4 bedroom, 2.5 bath with spacious 3rd floor living area, gorgeous custom kitchen flowing into the family room with gas fireplace open concept on first floor adorned with hardwood throughout. 4 spacious bedrooms on 2nd floor including laundry room and gorgeous master bedroom with double entry door and custom master bath. Great 3rd floor recreation room for the kids!
Want to
learn more?
learn more?
Contact us any time. We look forward to discussing your home building project with you!



