12615 Beach Avenue (corner of Beach and Dune) Long Beach Island
12615 Beach Avenue
(corner of Beach and Dune)
Long Beach Island
Located on one of the best streets on the
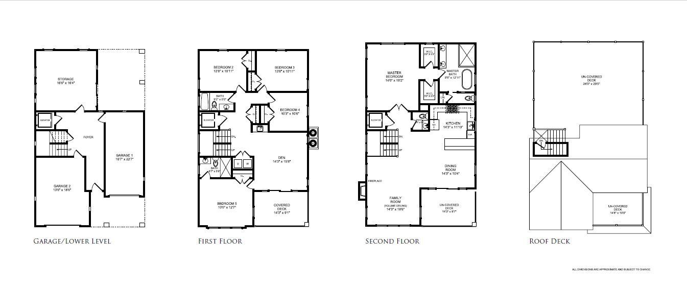
South end of the island. This new home will be just under 3,000 sq ft and will have it all. Features include: 5 bedrooms, 3.5 bathrooms, all high end, coastal friendly materials, 6 inch engineered wide plank hardwood flooring, high-end custom white shaker cabinets, top of the line appliance package, gas fireplace w/ beautiful wood mantle & surrounded by built-ins, 3 stop elevator, 2-zoned HVAC, tankless hot water heater, custom interior trim package (including shiplap and built-ins), and white quartz countertops. Outside will be a wonderful, private oasis including : 12 x 22 heated salt water pool w/ adjacent cabana area, an extensive paver package, outdoor shower, and privacy fence. Generous decking off the front of the house as well as rooftop deck will provide outstanding street end ocean views. Builder would be happy to engage with customer
now to allow for choosing of specifications of their choice.
Offered at $2,795,000
Want to
learn more?
learn more?
Contact us any time. We look forward to discussing your home building project with you!

