HOME
ABOUT
DESIGN & BUILD
RECENT CUSTOM HOMES
RENDERINGS & LAYOUTS
HOMES FOR SALE
CONTACT
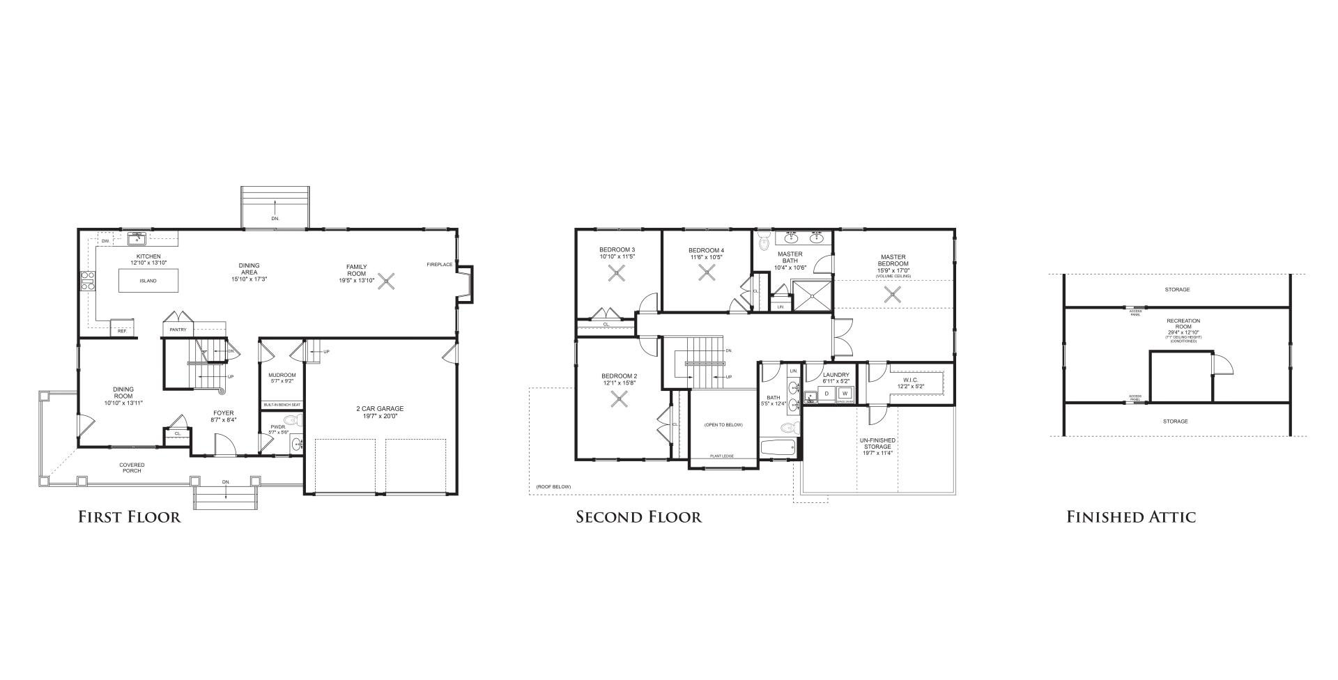
The Haven - Borrie Floorplan and Rendering
THE HAVEN
Button
Button
4 BEDROOMS
3 BATHROOMS
2,850+ SQUARE FEET
Want to
learn more?
Contact us any time. We look forward to discussing your home building project with you!
Name
Phone
Email
Message
Thank you for contacting us.
We will get back to you as soon as possible
Oops, there was an error sending your message.
Please try again later
Experienced. Local. Reliable.
We are available at your convenience to discuss your project
Call us: 732-840-7911
Location
1131 Bay Ave. - Point Pleasant, NJ 08742
Email
projects@dolphinhomesllc.com
Call
732-840-7911
Navigation
HOME
ABOUT
DESIGN & BUILD
RECENT CUSTOM HOMES
HOMES FOR SALE
CONTACT
Home Design Center Hours
Mon - Fri
8:00 am
-
5:00 pm
Saturday
Appointment Only
Sunday
Closed
About Dolphin Homes
Dolphin Homes is the leading custom home builder in Ocean and Monmouth County for over 30 years.
© 2026
All Rights Reserved | Dolphin Homes LLC
Share by: